weitergeleitet von
Zweizylinderlokomotive
10. Grundsätzliche Bauart der zwei-, mehrzylinder- und Verbundlokomotiven
10.A. Die Entwicklung von der Zwei- zur Mehrzylinder-Lokomotive
Gründe für den Bau von Mehrzylinder-Lokomotiven
In den ersten Jahrzehnten der Eisenbahn wurden nur 2-Zylinder- Lokomotiven gebaut. Ihre Leistung reichte für die damals zu befördernden Zuggewichte aus. Der Vorzug der einfachen und billigen Bauart sichert der Zwillingslokomotiye auch heute noch ein weites Arbeitsfeld. Als dann die Zuggewichte allmählich größer wurden, reichte jedoch die Leistung von zwei Zylindern, wollte man sie nicht unwirtschaftlich groß bauen, für schweren Zugbetrieb z. B. im Gebirge nicht mehr aus und man ging für solche Betriebsverhältnisse allmählich auf die Mehrzylindermaschine über, die man als 3- oder 4-Zylinder-Lokomotive ausführte. Andere Gründe führten ebenfalls zur Mehrzylindermaschine. Im Schnellzugsverkehr ist es vor allem der unruhige Lauf der Zwillingsmaschine bei hoher Fahrgeschwindigkeit, der die in den Triebwerksmassen besser ausgeglichene Mehrzylinder-Lokomotive dieses Arbeitsgebiet erobern ließ. Das von den hin- und hergehenden Massen verursachte Zucken der Lokomotive nutzt die einzelnen Bauteile sehr stark ab und macht sich auch auf das Lokomotivpersonal sowie die ersten nachlaufenden Wagen recht unangenehm bemerkbar, so daß man Wege suchen mußte, um dieses Zucken weitgehendst einzuschränken. Das ist bei Mehrzylinder- Lokomotiven möglich. Außerdem können solche Maschinen den Zug in Steigungsstrecken wegen des gleichförmigeren Drehmoments an der Treibachse besser anziehen. Die Drillingsmaschinen neigen dort weniger zum Schleudern als 2-Zylinder-Lokomotiven. Etwa zur gleichen Zeit, als man auf die Mehrzylinder-Lokomotive überging, führte das Streben nach möglichst wirtschaftlichem Dampfverbrauch zum Verbundverfahren, bei dem der Kesseldampf nacheinander erst im kleineren Hochdruckzylinder und dann im größeren Niederdruckzylinder Arbeit leistet. Man findet daher Mehrzylinder-Lokomotiven entweder als Drillings- oder Vierlingslokomotiven, bei denen alle drei oder vier Zylinder gleichzeitig Frischdampf erhalten und diesen Dampf bis zum Ausströmdruck verarbeiten, oder als 3- und 4-Zylinder-Verbundlokomotiven, bei denen der Dampf jeweils zwei nebeneinanderliegende Zylinder nacheinander durchströmt und dann erst ins Blasrohr gelangt. Vereinzelt gab es auch 2-Zylinder-Verbundlokomotiven.
1. Arbeitsweise des Dampfes
Einfache Dampfdehnung
Bei allen Maschinen mit einfacher Dampfdehnung erhält jeder Zylinder Frischdampf von vollem Kesseldruck und entspannt den Dampf bis auf etwa 0,1 bis 1,2 atü Gegendruck. Der Abdampf der Zylinder wird einem gemeinsamen Blasrohr zugeführt (Bilder 159, 160). Bei den Zwillingslokomotiven hat jeder Zylinder seine besondere außen liegende Steuerung. Bei den Drillingslokomotiven wird die Steuerung für den mittleren Schieber entweder von den beiden äußeren Steuerungen abgeleitet (Reihe 17-2 und 58-10) oder der Mittelzylinder erhält einen eigenen Steuerungsantrieb [Reihe 01
10, 03
10, 05, 06, 39
0, 44, 45).

Bild 159 Zylinderanordnung einer Zwillingsmaschine

Bild 160 Zylinderanordnung einer 3-Zylinder-Maschine
Doppelte Dampfdehnung
Bei der Verbundlokomotive wird nur den Hochdruckzylindern Dampf von voller Kesselspannung zugeführt. Der Dampf wird im Hochdruckzylinder auf 4 bis 5 atü entspannt und geht dann über einen Verbinder in den Niederdruckzylinder. Der Abdampf der Niederdruckzylinder wird in ein gemeinsames Blasrohr geleitet. Da die Dampfspannung im Niederdruckzylinder bedeutend geringer ist als im Hochdruckzylinder und trotzdem in beiden Zylindern etwa die gleiche Arbeitsleistung erreicht werden soll, baut man den Niederdruckzylinder mit einem erheblich größeren Durchmesser als den Hochdruckzylinder. Der Inhalt des Niederdruckzylinders beträgt etwa das 2,5fache des Hochdruckzylinders (Bild 161).
Um ein ununterbrochenes Arbeiten des Hoch- und Niederdruckzylinders zu erreichen, muß zwischen beide ein Speicherraum, der sogenannte ”Verbinder”, geschaltet werden.

Bild 161 Zylinderanordnung einer 4-Zylinder-Verbundmaschine
Die großen Vorteile, die das Verbundverfahren bei Naßdampflokomotiven durch Verminderung der Abkühlung und Niederschlagsverluste brachte, sind durch die Einführung der heute üblichen hohen Dampfüberhitzung und die Drucksteigerung bis auf 20 atü aufgehoben worden. Die Einheitslokomotiven der Deutschen Bundesbahn werden daher schon seit längerer Zeit nur noch als Maschinen mit einfacher Dampfdehnung gebaut. Inwieweit das Verbundverfahren heute noch dampfwirtschaftliche Vorteile bringen kann, müßte durch Versuche geklärt werden.
2. Triebwerksanordnung
Zwillingsmaschinen
Bei Zwillingsmaschinen sind die Treibkurbeln der einen Maschinenseite gegen die der anderen Maschinenseite um 90° versetzt, damit die Lokomotive in jeder Treibradstellung anfahren kann. Bei den Bundesbahnlokomotiven läuft die rechte Treibkurbel der linken bei Vorwärtsfahrt um 90° voraus. Beide Zylinder arbeiten auf eine Achse.
Drillingsmaschinen
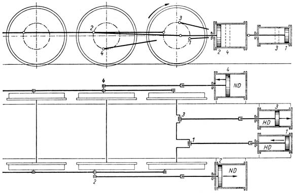
Bei Drillingsmaschinen wirken entweder alle 3 Treibstangen auf eine Achse (Einachsantrieb, Bild 162: Reihe 17
2, 39
0) oder auf 2 verschiedene Achsen (Zweiachsantrieb, Bild 163: Reihe 01
10, 03
10, 05, 06, 44, 45, 58). In Drillingslokomotiven muß meistens der mittlere Zylinder geneigt angeordnet werden, damit das mittlere Triebwerk über die vordere Kuppelachse hinweggeführt werden kann. Die rechte und linke Treibkurbel sind dann um 120° gegeneinander, die mittlere Treibkurbel gegen die linke um den Winkel 120 + w, gegen die rechte um den Winkel 120 + w versetzt. w ist dabei der Neigungswinkel des mittleren Zylinders gegen die Waagerechte (Bilder 162, 163).

Bild 162 Triebwerksanordnung einer Drillingslokomotive (Einachsantrieb)

Bild 163 Triebwerksanordnung einer Drillingslokomotive (Zweiachsantrieb)
4-Zylinder-Lokomotiven
Die 4-Zylinder- (Vierlings-) und die 4-Zylinder-Verbundlokomotiven werden auch mit Einachs- (Reihe 17
0) oder Zweiachsantrieb (Reihe 18
4) (Bilder 164, 165) ausgebildet. Die Treibkurbeln der nebeneinanderliegenden Hochdruck- und Niederdruckzylinder sind um 180° gegeneinander versetzt, sie arbeiten also gegenläufig. Die Treibkurbeln der beiden Hochdruckzylinder sind um 90° gegeneinander versetzt, wobei ebenso wie bei den Zwillingsmaschinen die rechte Treibkurbel der linken bei Vorwärtsfahrt um 90° vorauseilt (Bilder 164, 165). Meist liegen bei 4-Zylinder-Verbundlokomotiven die Niederdruckzylinder außen, da sie sich im Raum zwischen den Rahmenwangen nicht unterbringen lassen.

Bild 164 Triebwerksanordnung einer 4-Zylinder-Verbundlokomotive (Einachsantrieb)

Bild 165 Triebwerksanordnung einer 4-Zylinder-Verbundlokomotive (Zweiachsantrieb)
3. Anfahreinrichtungen der Verbundmaschinen
Verbundmaschinen (Einzelheiten)
Bei der Verbundmaschine wird, wie wir schon gesehen haben, nur dem Hochdruckzylinder Frischdampf zugeführt. Eine solche Maschine kann nicht ohne weiteres in Gang gesetzt werden, wenn sich die Hochdruckkurbel in einem Totpunkt oder in der Stellung befindet, in der der Hochdruckschieber die Dampfeinströmung nach dem Zylinder eben abschließt, weil bei diesen Kurbelstellungen (Bild 166) weder im Hoch- noch im Niederdruckzylinder eine Antriebskraft wirken kann. Um daher mit einer Verbundmaschine jederzeit sicher anfahren zu können, muß man während des Anfahrens auch dem Niederdruckzylinder Frischdampf zuführen. In die Bundesbahnlokomotiven sind hierzu entweder besondere Anfahrventile eingebaut oder es wird der Druckausgleicher des Hochdruckzylinders benutzt.

Bild 166 Stellungen der Hochdruckkurbel, aus denen nicht ohne weiteres angefahren werden kann
Anfahrventile
Eine bei der Reihe 18
3 (bad. IVh) und 18
5 (bayr. S 3/6) gebräuchliche Anordnung der Anfahrventile sowie einen Schnitt durch den Frischdampfhahn zeigt Bild 167.
Bei vollständig nach vorwärts oder rückwärts (über 68 %) ausgelegter Steuerung werden von der Steuerwelle über ein Gestänge gleichzeitig der Frischdampfhahn und die Anfahrventile geöffnet (Bild167). Frischdampf aus der Hochdruckschieberkammer kann jetzt über den Zylinder zum Niederdruckschieber strömen. Sollte auch der Niederdruckschieber ungünstig stehen, dann tritt der Frischdampf durch besondere Füllbohrungen in der Schieberbuchse, die von den Anfahrventilkolben freigegeben werden, über den Einströmkanal zum Niederdruckzylinder.
Sowie die Steuerung nach den ersten Radumdrehungen unter 68 % Füllung zurückgenommen wird, schließen sich Anfahrhahn und Ventile. Die Verbundwirkung ist dann wieder hergestellt (Bild 167). Man versucht neuerdings, nur mit dem Anfahrhahn allein ohne die Ventile auszukommen, um die Einrichtung zu vereinfachen und die Anfahrwilligkeit der Lokomotive zu verbessern.
Grundsätzlich wird auch bei allen anderen Anfahreinrichtungen die Verbundwirkung zwischen Hoch- und Niederdruck durch Zuleiten von Frischdampf zum Niederdruckzylinder aufgehoben, um das Anfahren in jeder Stellung der Maschine sicherzustellen.
Druckausgleicher als Anfahrvorrichtung
Bei der Schnellzuglokomotive Reihe 17-10 wurde der Druckausgleicher des Hochdruckzylinders als Anfahrvorrichtung benutzt. Beim Anfahren wird zunächst nur der Druckausgleicher des Niederdruckzylinders geschlossen, der des Hochdruckzylinders bleibt offen. Der einströmende Frischdampf kann über den geöffneten Druckausgleicher zum Verbinder und von dort in den Niederdruckzylinder gelangen. Während der Anfahrt arbeitet dann fast nur der Niederdruckzylinder, da im Hochdruckzylinder durch den geöffneten Druckausgleicher auf beiden Kolbenseiten annähernd gleicher Druck liegt und infolgedessen keine nennenswerte nutzbare Kolbenkraft entsteht. Sowie nach den ersten Radumdrehungen der Druckausgleicher des Hochdruckzylinders geschlossen wird, ist die volle Verbundwirkung wieder hergestellt.

Bild 167 Anordnung der Anfahrtventile an einer 4-Zylinder-Verbundmaschine